Prodej pozemku se stavebním povolením, obec Popůvky u Brna, CP 1924 m²
- typ
- stavební
- adresa
- Popůvky u Brna
- celková plocha
- 1924m2
- uliční šíře
- 42
- voda
- ano
- elektřina
- ano
- plyn
- kanalizace
- poznámka
- Cena
- 0Kč
Popis:
Ve výhradním zastoupení Vám nabízíme zprostředkování prodeje pozemku, na který již bylo vydáno stavební povolení, a který se nachází v nově se rozvíjející části Popůvek.
Celková výměra pozemku činí 1.924 m², přičemž se jedná o skoro pravidelný čtverec (42 m x 47 m). V přední části je pozemek rovinatější než v části zadní. Momentálně zde stojí chata (23 m2), která je určena k demolici.
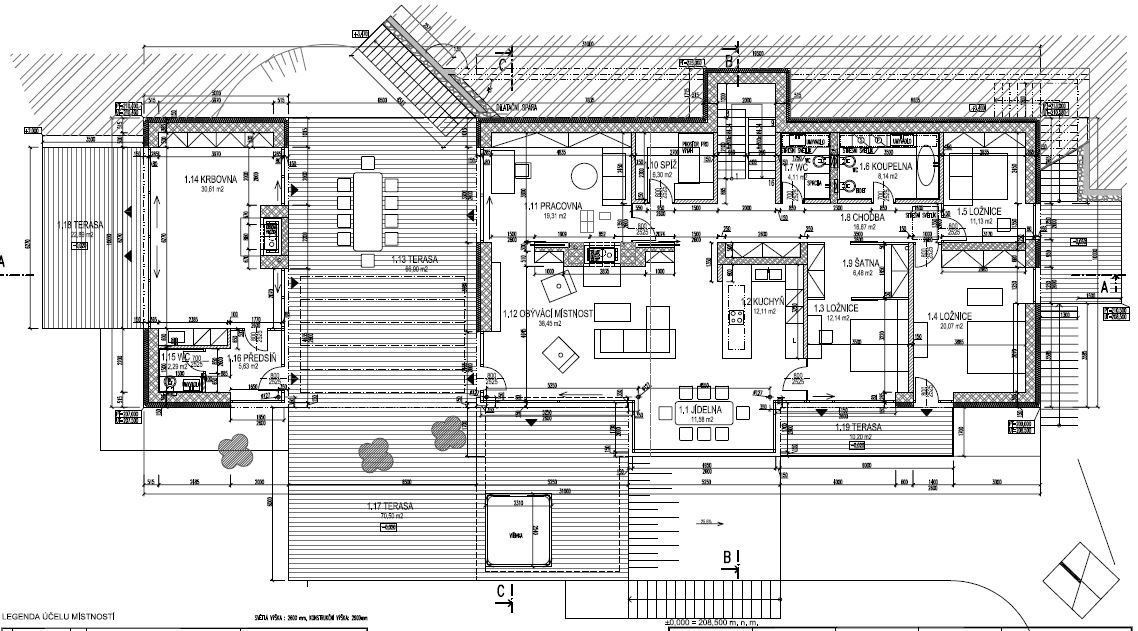
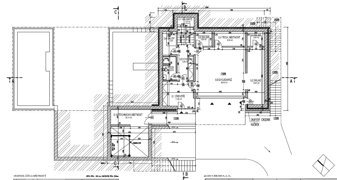
Stavební povolení je v současnosti vydáno na výstavbu nadstandardního dvoupodlažního rekreačního objektu se zelenou střechou o velikosti 5+kk, cca 400 m² včetně teras (150 m2). Dům je navržen včetně dvojgaráže, technického zázemí a tepelného čerpadla.
Ovšem na pozemku lze postavit i nemovitost podle Vašich představ max. do 100 m2. Popřípadě se dá pozemek rozdělit a následně obě části využít k výstavbě.
IS: elektřina - stavební rozvaděč na pozemku, voda - vlastní studna na pozemku, kanalizace - povolená jímka na vyvážení.
Příjezd na pozemek je po asfaltové komunikaci kolem Dolního rybníku a následně vede po panelové komunikaci. V blízkosti pozemku stojí chaty a nově postavené domy.
Popůvky u Brna mají přibližně 1.900 obyvatel a nachází se v okrese Brno-venkov v těsné blízkosti Brna a přitom v Bobravské vrchovině. Obec je součástí IDS, nabízí pravidelné autobusové spojení i infrastrukturu v podobě mateřské a základní školy.
V okolí jsou rozsáhlé lesy lákající k procházkám, turistice a ke sběru hub. V blízkosti je soukromý rybník určený ke sportovnímu rybolovu.
Neváhejte mě kontaktovat a domluvte si prohlídku. Rád vám tento výjimečný pozemek osobně představím.
Makléř, který Vám nemovitost rád předvede:
- 
	  Bc. Zdeněk MITANA – realitní makléřTel.+420 604 189 918
 Emailzdenek.mitana@correctreal.cz
 Nemovitosti makléře„Vaši představu o prodeji změním v realitu." 



 
			












 
		
		 
		
		





